Ano de finalização: 2022
Área construída: 43,13m²
Localização: Porto Alegre, RS
Área construída: 43,13m²
Localização: Porto Alegre, RS
FPA Felipe Pacheco Arquitetos > Felipe Pacheco, Arq. Ms. // Paralelo 30 > Felipe Stockler, Arq., Guilherme Dihl, Arq., Rafael Bini, Arq., Vinicius Martini, Arq.
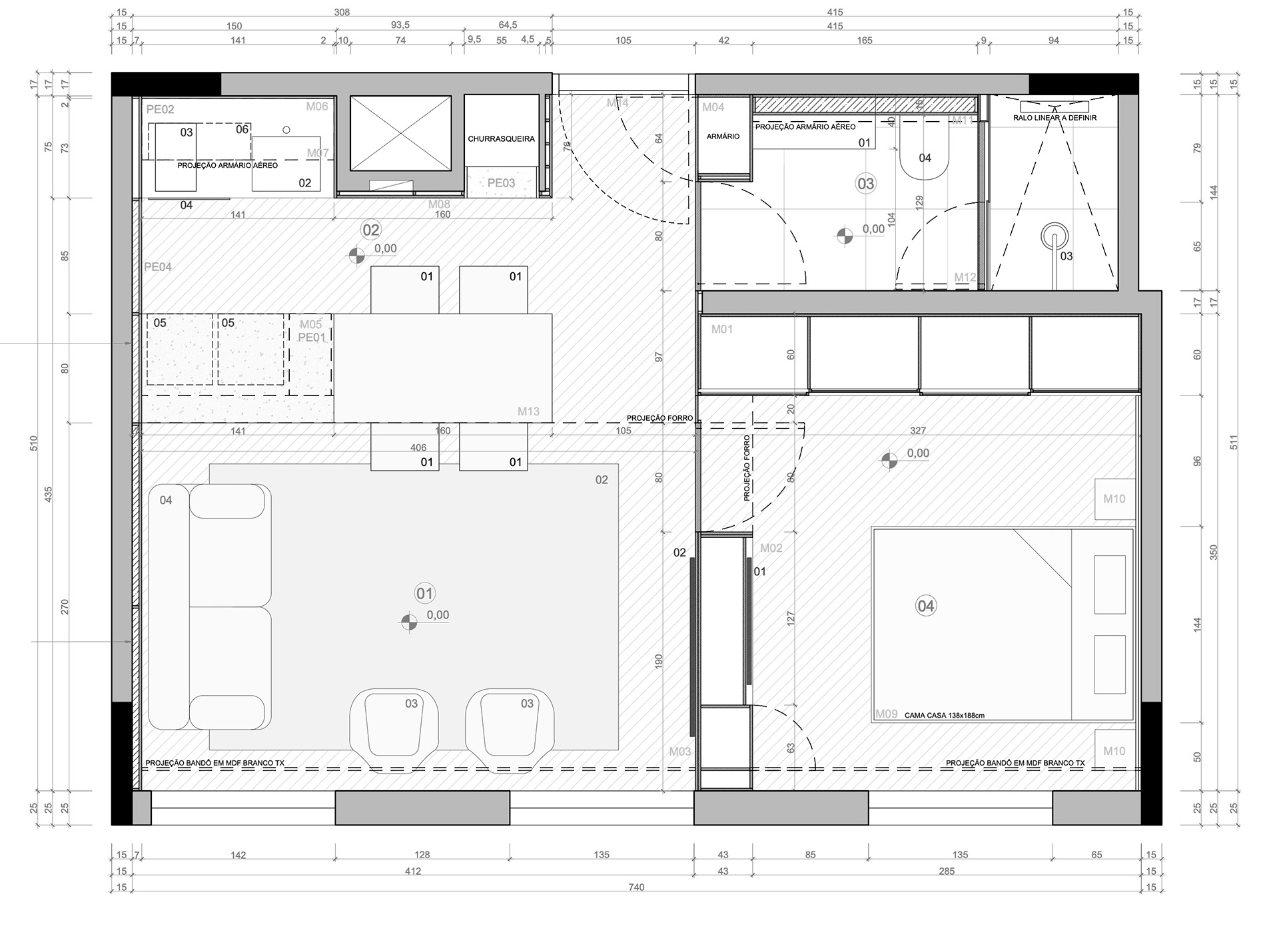
Trata-se do apartamento para um casal que decidiu morar na casa de praia, depois da quarentena de 2020. Com 43m2, planta retangular e acesso no eixo longitudinal, o imóvel é entregue com copa e banheiro prontos, sem mais divisões. Para acomodar o programa, divide-se o espaço em duas zonas, privada e semi-privada, assim formando o dormitório e a sala de estar associada ao espaço gourmet, separados por uma ilha e mesa de jantar em península. Junto à parede da churrasqueira, cria-se um balcão e aéreo, contendo forno elétrico, microondas, fogão de indução, coifa e espaços de guardar. O plano é todo revestido com chapas de MDF, o que unifica o volume. A ilha acomoda o refrigerador horizontal sob medida e espaços adicionais de guardar. O plano divisório é todo amadeirado, piso-teto, e nele se inscrevem as portas do banheiro e do quarto. Em anexo há dois espaços de guardar, um para o espaço gourmet, outro para o dormitório. No dormitório há o roupeiro, cuja face externa é de vidro. O pé-direito é rebaixado dos 260cm originais para 230cm, o que permite a acomodação do sistema built-in, ou seja, não há splits ou cassetes visíveis, apenas as grelhas difusoras do ar climatizado. Do banheiro suprime-se um trecho, cuja área é cedida para espaço de guardar. Dentro cria-se um plano piso-teto inteiramente espelhado, com duas folhas, sendo uma de abrir para fora. Justapostas há duas portas convencionais de correr, de vidro temperado. Disso resulta um espaço com aparência de lavabo, para que visitantes não percebam a existência do box, de caráter mais íntimo. O piso é todo de madeira, enquanto as faces da área gourmet são revestidas em MDF branco laqueado e granito branco rajado. Apenas o plano divisório central é amadeirado, do que sucede um contraste entre superfícies. O resultado é um apartamento confortável, funcional, despojado e de caráter atemporal, em que cada centímetro é bem empregado na experiência real do usuário.
Completion year: 2022
Gross built area: 43.13 Sqm
Location: Porto Alegre, Brazil
Gross built area: 43.13 Sqm
Location: Porto Alegre, Brazil
FPA Felipe Pacheco Arquitetos > Felipe Pacheco, Arq. Ms. // Paralelo 30 > Felipe Stockler, Arq., Guilherme Dihl, Arq., Rafael Bini, Arq., Vinicius Martini, Arq.
This is the apartment for a couple who decided to live in their beach house, after the 2020 quarantine. Comprising 43 Sqm, a rectangular floor plan and access in its longitudinal axis, it's delivered with a pantry and bathroom, no other internal divisions. To accommodate the program the space is divided in two zones, private and semi-private, forming bedroom and living room -- which is next to the gourmet area, separated exclusively by a kitchen island and a peninsula table. Next to the barbecue grill is the kitchen balcony and its overhead cabinet, containing electric oven, microwave oven, stove, hood and storage spaces. The whole plan is covered with MDF sheets, which unifies the volume. The kitchen island contains an horizontal refrigerator and additional storage spaces. Entirely laminated with wood, the dividing plan contains two doors -- bathroom and bedroom --, both mimicked in the surface. There are also two storage spaces, one turned to the living room, other to the bedroom. In the bedroom there is a wardrobe whose external face is fully glassy. The ceiling height is lowered from 260cm to 230cm, allowing the insertion of a built-in air conditioning unit, so that no hi-wall splits or others are visible, only the air diffuser grilles. From the original bathroom a section is removed and converted into extra storage space. Inside, there is a floor-to-ceiling mirrored surface, which is divided in two different plans, one of them opening outwards. Juxtaposed there are two conventional tempered glass sliding doors. That results in a space that looks like a toilet, since visitors don’t perceive the existence of a shower box. The whole floor is covered with wood, while the gourmet area is cladded with white lacquered MDF and white striped granite. Only the central dividing plan has a laminated wooden surface, which provides an interesting contrast. The result is a comfortable, functional, clean and timeless apartment, where every inch is dedicated to the user’s experience.















































RENDERS










PLANTAS BAIXAS






FICHA TÉCNICA
- Fotos: Marcelo Donadussi
- Escopo civil: SFS Engenharia
- Ar condicionado: Neoclima
- Piso porcelanato: Ladrilhart
- Marcenaria: Aumar Móveis
- Granitos: Rosito Luce
- Serralheria e vidros: ESAAL Alumínios
- Mobiliário pronto e decoração: Tradesign
- Luminárias: Laboratório da Luz
- Louças e metais: Elevato e SIA
- Escopo civil: SFS Engenharia
- Ar condicionado: Neoclima
- Piso porcelanato: Ladrilhart
- Marcenaria: Aumar Móveis
- Granitos: Rosito Luce
- Serralheria e vidros: ESAAL Alumínios
- Mobiliário pronto e decoração: Tradesign
- Luminárias: Laboratório da Luz
- Louças e metais: Elevato e SIA
CREDITS
- Photos: Marcelo Donadussi
- Civil construction: SFS Engenharia
- Air conditioning: Neoclima
- Ceramic floor: Ladrilhart
- Custom made furniture: Aumar Móveis
- Furniture and decorative items: Tradesign
- Natural stones: Rosito Luce
- Metal works and glasses: ESAAL Alumínios
- Lighting: Laboratório da Luz
- Sanitary ware and metals: Elevato and SIA
- Civil construction: SFS Engenharia
- Air conditioning: Neoclima
- Ceramic floor: Ladrilhart
- Custom made furniture: Aumar Móveis
- Furniture and decorative items: Tradesign
- Natural stones: Rosito Luce
- Metal works and glasses: ESAAL Alumínios
- Lighting: Laboratório da Luz
- Sanitary ware and metals: Elevato and SIA