Ano de finalização: 2013
Área construída: 200m²
Localização: Porto Alegre, RS
Área construída: 200m²
Localização: Porto Alegre, RS
Completion year: 2013
Gross built area: 200 Sqm
Location: Porto Alegre, Brazil
Gross built area: 200 Sqm
Location: Porto Alegre, Brazil
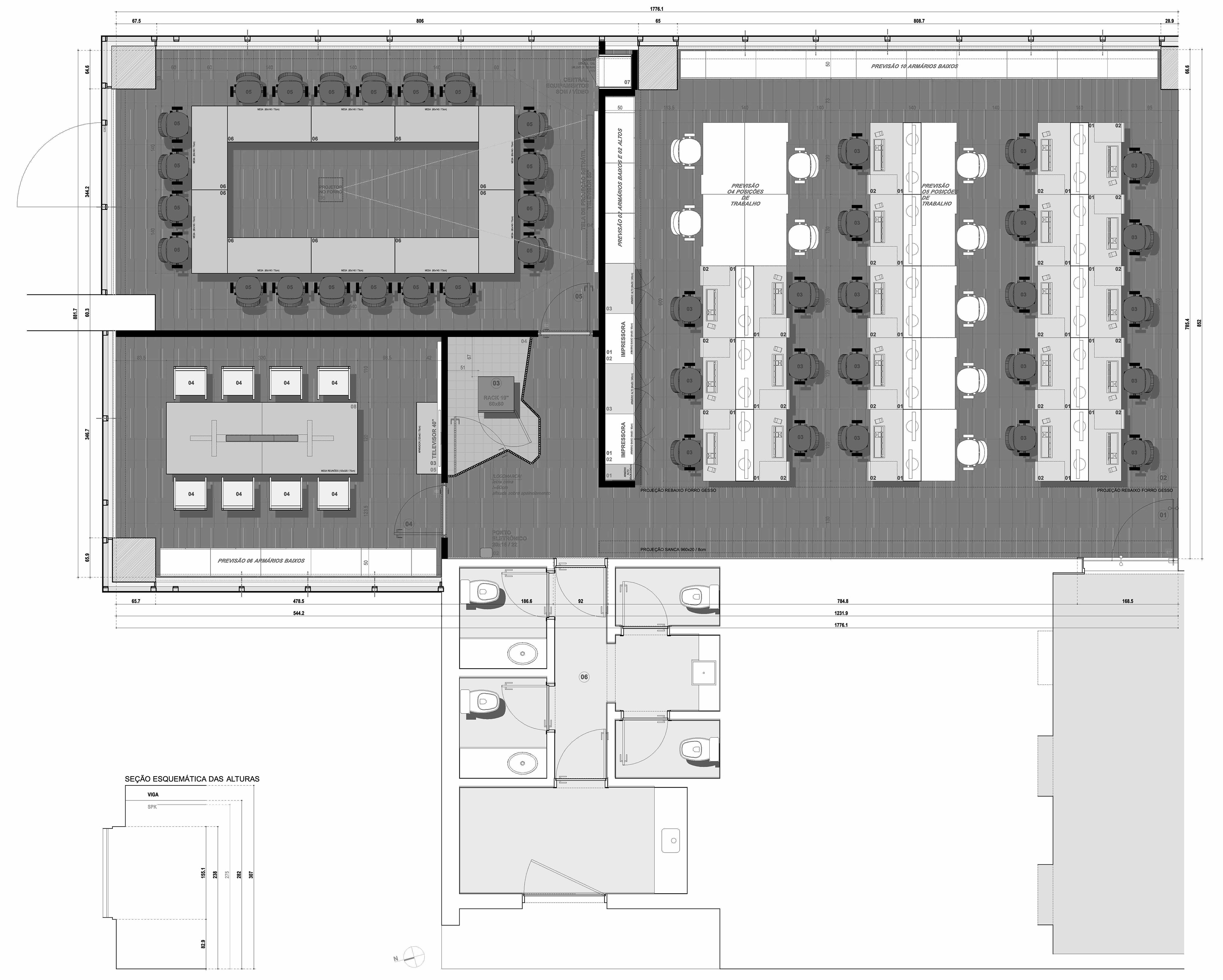
PLANTAS BAIXAS