Ano de finalização: 2010
Área construída: 350,00m²
Localização do projeto: Porto Alegre, RS
Área construída: 350,00m²
Localização do projeto: Porto Alegre, RS
Completion year: 2010
Gross built area: 350.00 Sqm
Localização do projeto: Porto Alegre, Brazil
Gross built area: 350.00 Sqm
Localização do projeto: Porto Alegre, Brazil

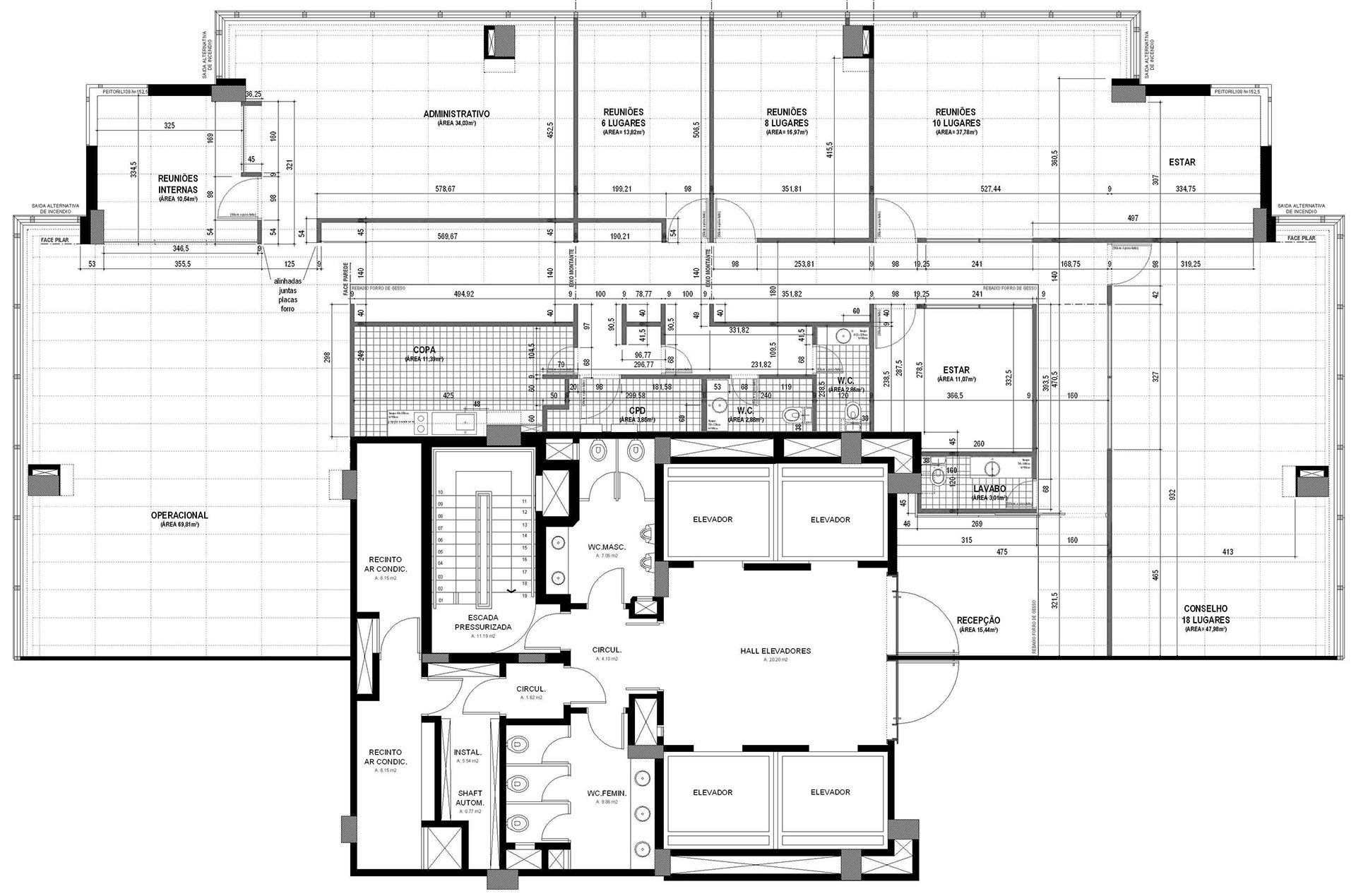
PLANTAS BAIXAS




REAPROVEITAMENTO DE MOBILIÁRIO

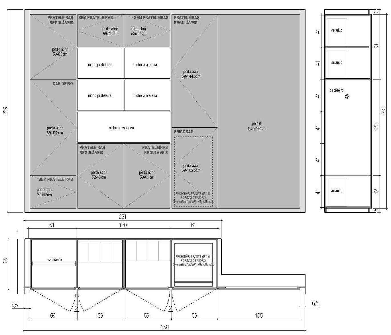
DETALHAMENTO





