Ano de finalização: 2013
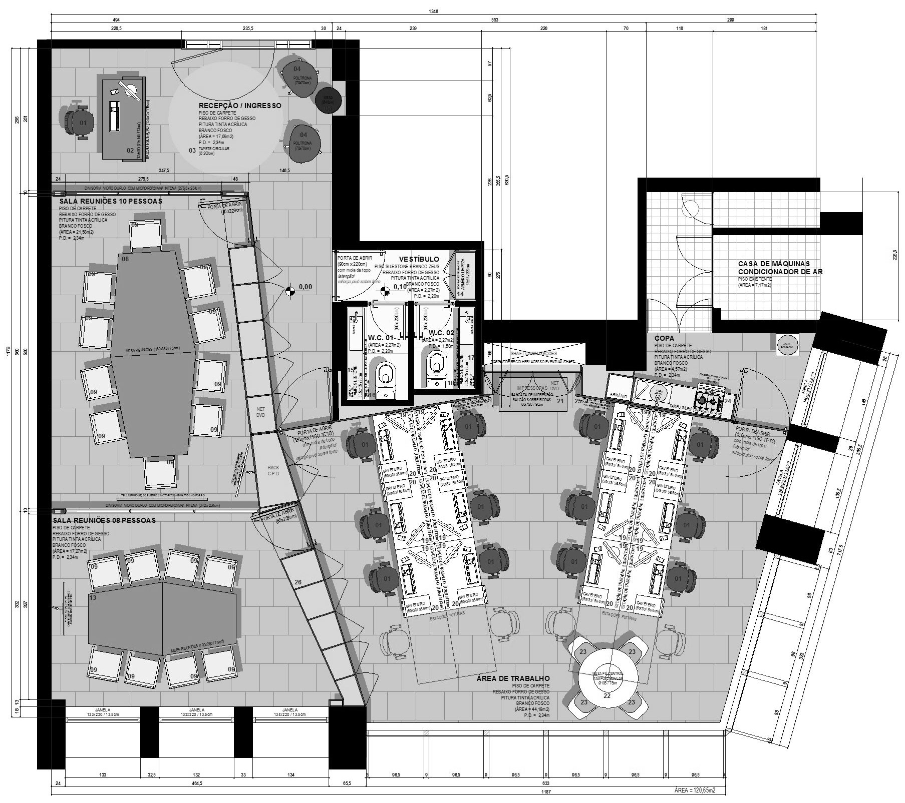
Área construída: 135,00m²
Localização do projeto: Porto Alegre, RS
Área construída: 135,00m²
Localização do projeto: Porto Alegre, RS
Completion year: 2013
Gross built area: 135.00 Sqm
Location: Porto Alegre, Brazil
Gross built area: 135.00 Sqm
Location: Porto Alegre, Brazil