FPA
EQUIPE
CORPORATIVO
RESIDENCIAL
MOBILIÁRIO
CONCURSOS
PUBLICAÇÕES
FPA
EQUIPE
CORPORATIVO
RESIDENCIAL
MOBILIÁRIO
CONCURSOS
PUBLICAÇÕES
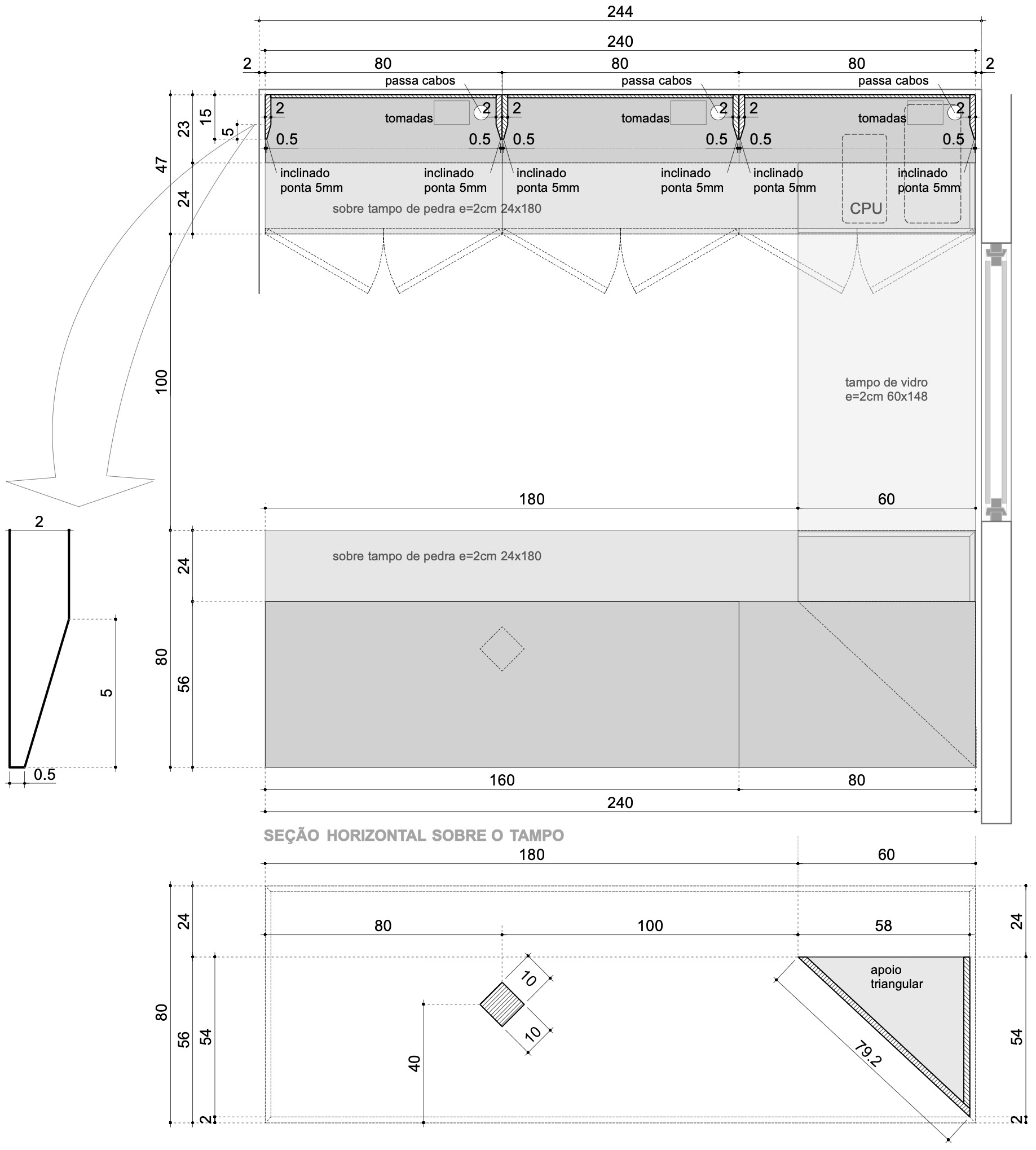
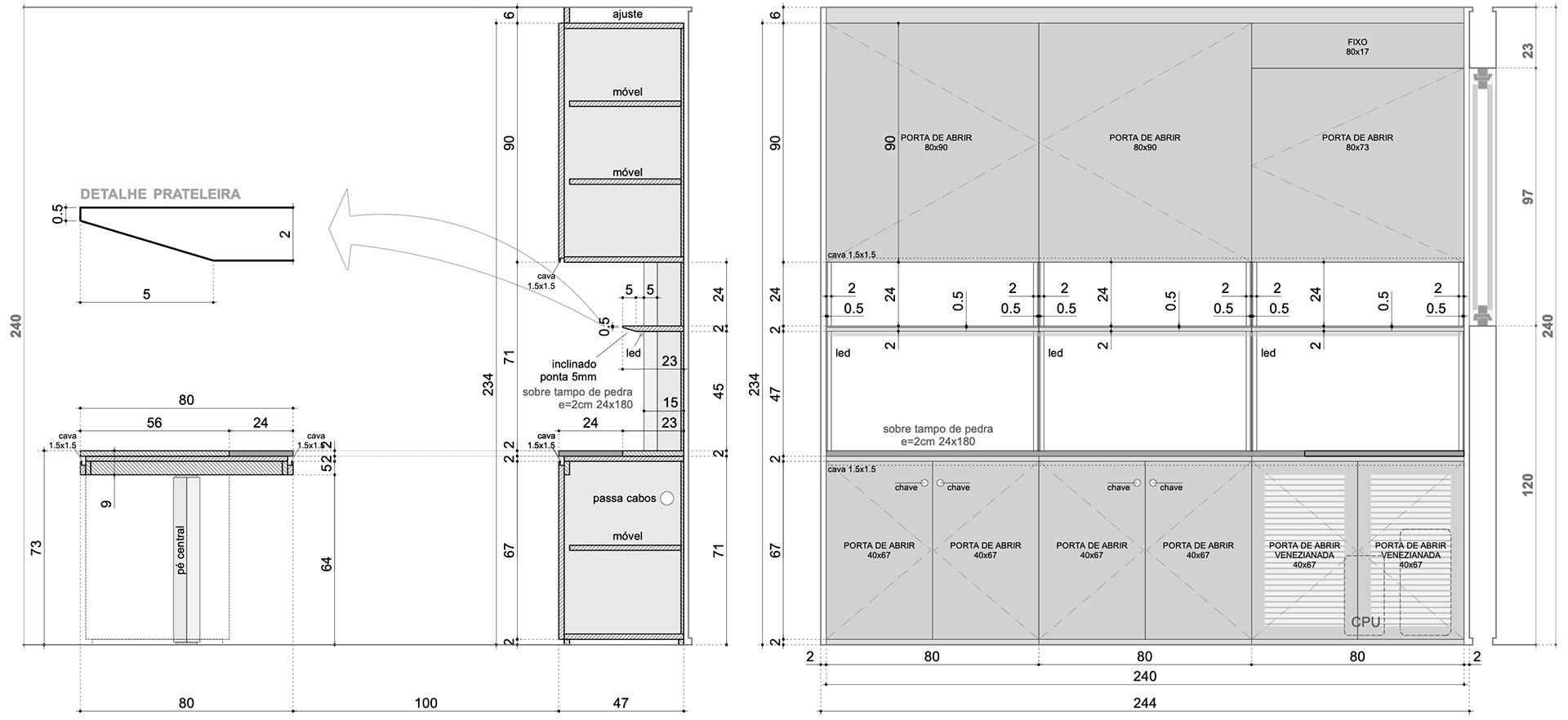
MOBILIÁRIO BZKF
↑
Back to Top