Projeto arquitetônico e gerenciamento de execução de obra para sete novos escritórios no Brasil
Porto Alegre (Edifício Furriel 250)
Rua Luis Antônio Furriel Vargas, 250 cj. 1201 (106,00m2)
São Paulo (WTC I) Avenida das Nações Unidas, 12.551 cj 1606 (exp 121,00m2)
São Paulo (WTC II)
Avenida das Nações Unidas, 12.551 cj 2407 (243,00m2)
São Paulo Barra Funda (Condomínio CEAB)
Avenida Francisco Matarazzo, 1500 cj. 121 (510,00m2)
Rio de Janeiro (Torre Rio Sul)
Rua Lauro Müller, 116 cj. 3103 (134,00m2)
Belo Horizonte (Edifício Savassi)
Avenida Getúlio Vargas, 887 cjs 801/802 (139,00m2)
Recife (Edifício Albert Einstein)
Rua Sport Club do Recife, 280 cjs. 902/04/06/08/10 (194,00m2)
Architecture plan and build-out management of seven new offices in Brazil SA
Porto Alegre (Edifício Furriel 250)
Rua Luis Antônio Furriel Vargas, 250 cj. 1201 (106 Sqm)
São Paulo (WTC I) Avenida das Nações Unidas, 12.551 cj 1606 (exp 121 Sqm)
São Paulo (WTC II)
Avenida das Nações Unidas, 12.551 cj 2407 (243 Sqm)
São Paulo Barra Funda (Condomínio CEAB)
Avenida Francisco Matarazzo, 1500 cj. 121 (510 Sqm)
Rio de Janeiro (Torre Rio Sul)
Rua Lauro Müller, 116 cj. 3103 (134 Sqm)
Belo Horizonte (Edifício Savassi)
Avenida Getúlio Vargas, 887 cjs 801/802 (139 Sqm)
Recife (Edifício Albert Einstein)
Rua Sport Club do Recife, 280 cjs. 902/04/06/08/10 (194 Sqm)
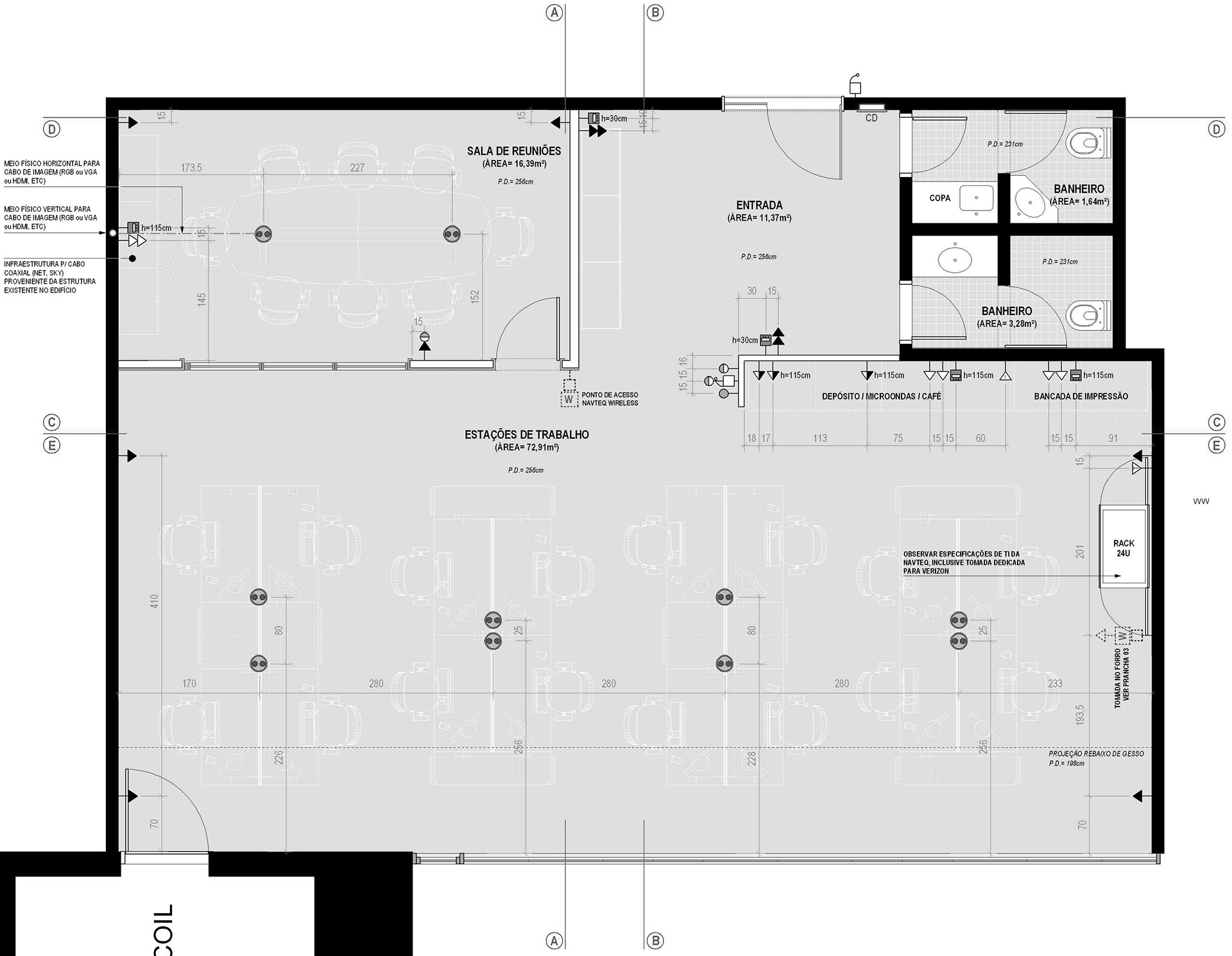
NAVTEQ SÃO PAULO WTC 2407
PLANTAS BAIXAS




DETALHES

NAVTEQ CORPORATION > RECIFE
PLANTAS BAIXAS




CORTES



DETALHES


NAVTEQ CORPORATION > BELO HORIZONTE
PLANTAS BAIXAS





NAVTEQ CORPORATION > RIO DE JANEIRO
PLANTAS BAIXAS




CORTES






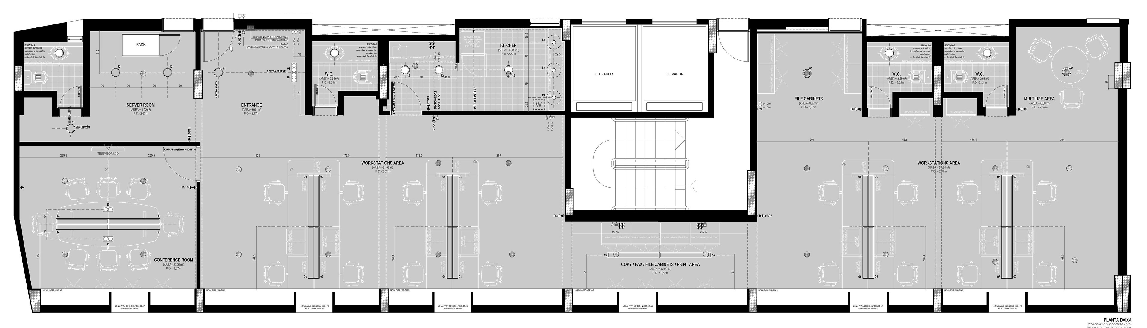
NAVTEQ CORPORATION > SÃO PAULO, BARRA FUNDA
PLANTAS BAIXAS




CORTES



NAVTEQ CORPORATION > SÃO PAULO WTC 1605
PLANTAS BAIXAS





NAVTEQ CORPORATION > PORTO ALEGRE

