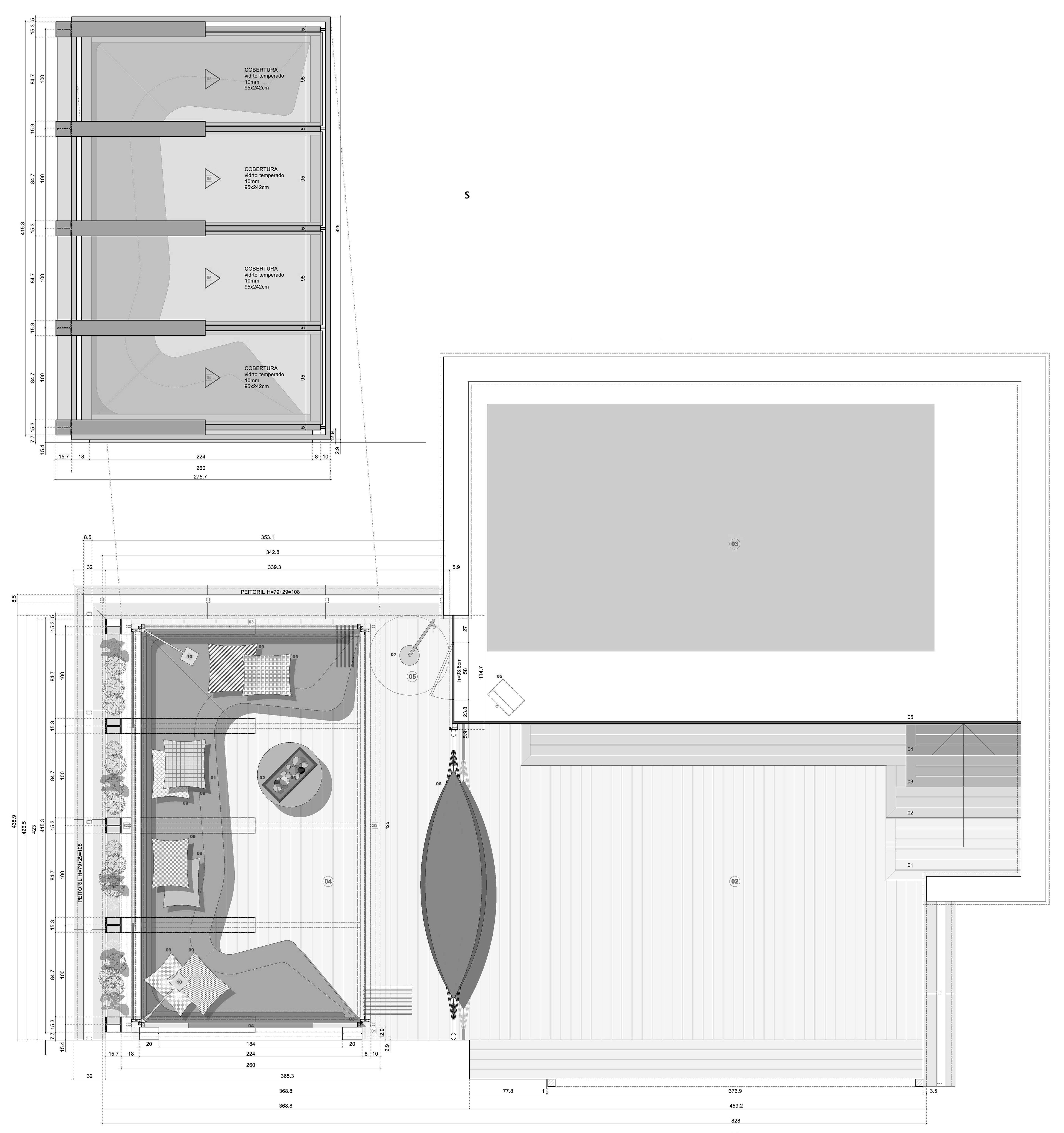
Ano de finalização: 2014
Área construída: 110,00m²
Localização: Porto Alegre, RS
Área construída: 110,00m²
Localização: Porto Alegre, RS
Completion year: 2014
Gross built area: 110.00 Sqm
Localização: Porto Alegre, RS / Brazil
Gross built area: 110.00 Sqm
Localização: Porto Alegre, RS / Brazil














