Ano de finalização: 2019
Área construída: 102,00 m²
Localização do projeto: Porto Alegre, RS
Área construída: 102,00 m²
Localização do projeto: Porto Alegre, RS
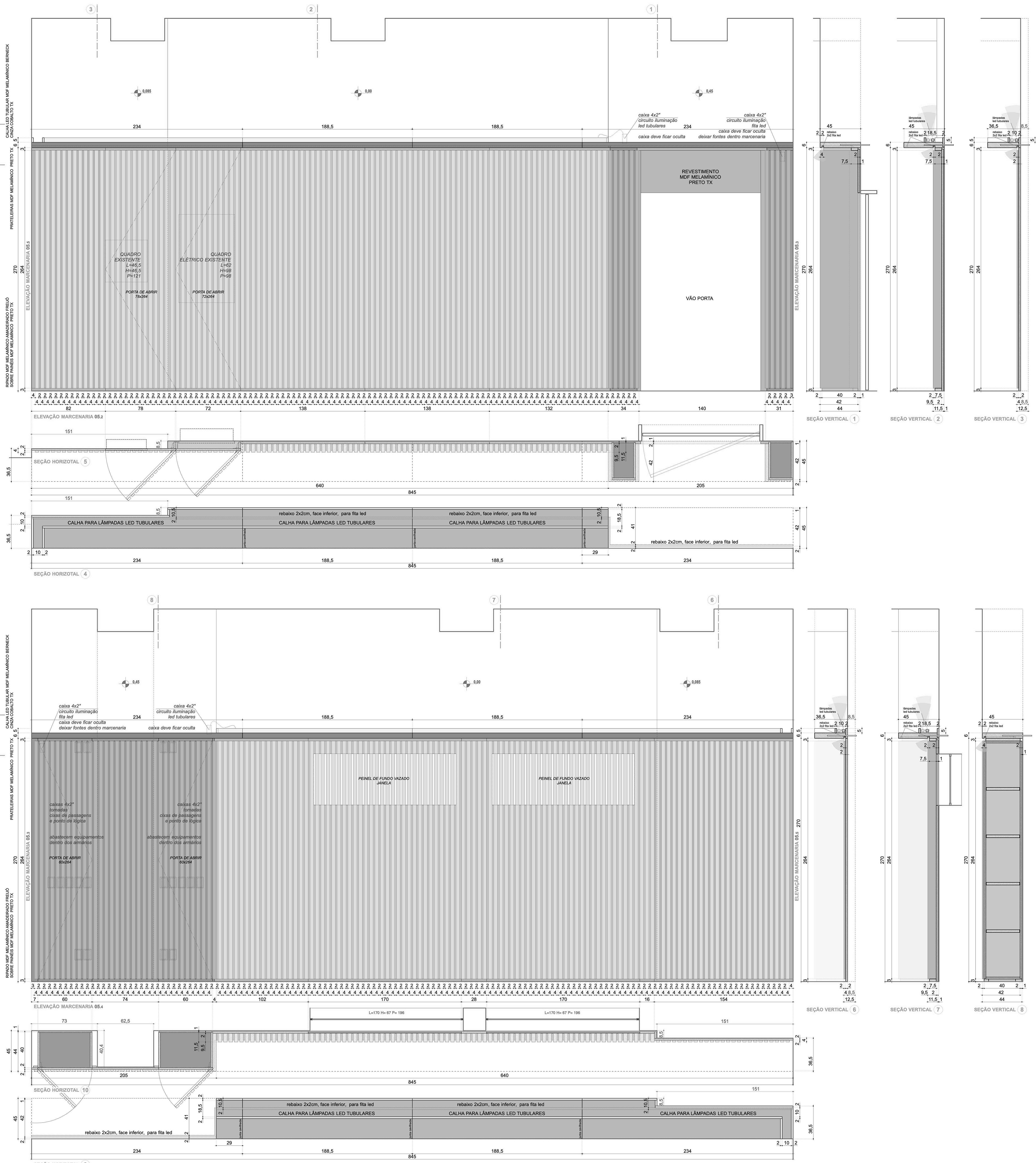
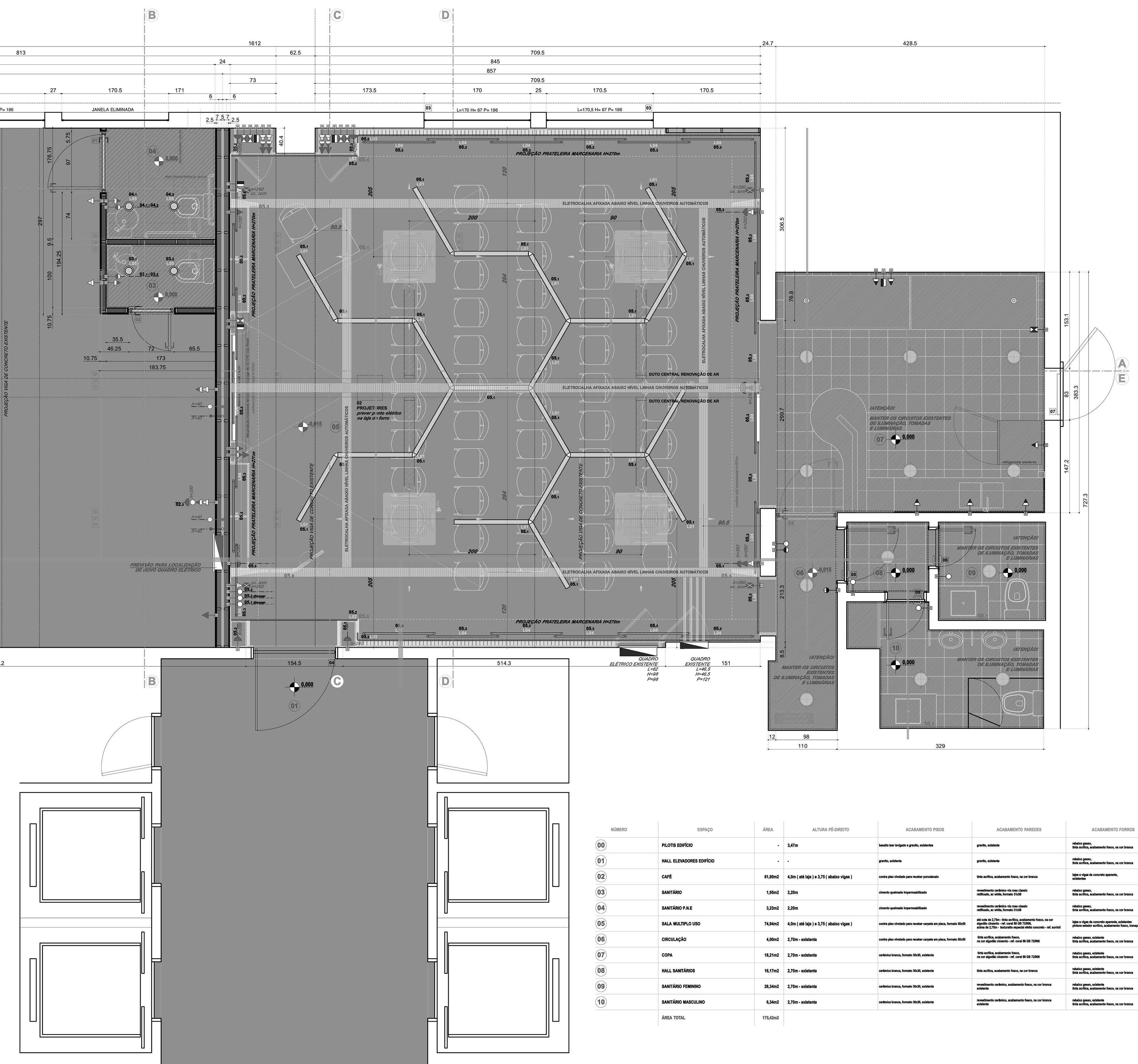
A Sala Multiuso é parte integrante do Trust Coworking, empresa que oferece espaços de trabalho privativos e compartilhados. Localiza-se no andar térreo de edifício corporativo localizado num dos endereços mais valorizados de Porto Alegre. É acessível mediante agendamento prévio para usuários internos e externos. A área é formada por um retângulo de 32,00m2 anexado a um quadrado de 70,00m2, totalizando 102,00m2. O primeiro corresponde à área servente, composta por uma copa/cozinha e dois sanitários. O segundo contém a área servida, onde estão o mobiliário e as cadeiras, que são organizados conforme as necessidades de cada usuário. O acesso principal se dá a partir do hall de elevadores do edifício, após a passagem pelas roletas eletrônicas, o que permite a triagem dos usuários antes do ingresso. À porta de acesso é acrescido internamente um volume de marcenaria, de modo a marcar a saída. No lado oposto da sala, um pilar existente é absorvido com volume equivalente, feito dos mesmos materiais, que acomoda também um armário com prateleiras e parte do sistema de som e imagem. Os dois volumes reforçam a simetria interna pretendida para o espaço, o que se vê noutros gestos também. O acesso secundário está na área de apoio, levando ao estacionamento privativo do edifício. Há diversos arranjos internos possíveis para a Sala Multiuso. Pode-se agrupar as cadeiras em formato de U, ou mesmo de um círculo ou quadrado. Podem ficar dispostas em mesas auxiliares, o que abre mais possibilidades. A maior ocupação da sala, contudo, dá-se no partido de cadeiras em linha, com capacidade para 50 pessoas (5 linhas de 10). Esta é a opção mais utilizada, pois volta os usuários à generosa tela de projeção, parte integrante de avançado sistema de som e imagem. A porta que separa o espaço servido do servente é de correr, o que permite a integração das áreas caso desejado. O forro da área servente é rebaixado, em gesso acartonado, distante 270cm do piso. Já na área servida, a laje superior é toda aparente, feita de concreto armado, com face inferior a 400cm do piso. Assim, ficam expostas a infraestrutura de elétrica, dados, ar condicionado e de prevenção contra incêndio. Para normatizar o espaço existente, com pé-direito de 400cm e três fachadas que contêm aberturas em formatos e alturas desequilibrados, cria-se uma linha de cornija com 270cm de altura. Abaixo desta, faz-se um revestimento de MDF ripado, que absorve todas as aberturas existentes e provê escala humana ao volume interno. Além disso, 16 luminárias pendentes ortogonalmente dispostas equalizam-se em altura com o plano da cornija, do que resulta uma espécie de forro virtual. O piso é revestido com carpete em placas, que oferece propriedades acústicas satisfatórias e facilita manutenção. As paredes acima da linha de cornija são pintadas de cor cinza, de modo a aproximar com o concreto armado da laje superior aparente. Resultam espaços internos de geometria simples, com faces internas e volumetria corrigidas para oferecer aos usuários experiências de conforto arquitetônico, além de todos os requisitos necessários para atender às demandas funcionais de uma Sala Multiuso.
Completion Year: 2019
Gross Built Area: 102.00 Sqm
Project location: Porto Alegre, Brazil
Gross Built Area: 102.00 Sqm
Project location: Porto Alegre, Brazil
The Multi-Use Room is part of Trust Coworking, a company that offers private and shared workspaces. Located in one of the most desired addresses in Porto Alegre, it can be booked either by internal or external users. The area results from the addition of two rectangles – 32,00 and 70.00 Sqm respectively –, summing up 102.00 Sqm. The first one comprises the serving area, composed by a bar/kitchen and two restrooms. The second contains the served area, where furniture and chairs can be organized accordingly to each user’s demands. The main access is next to the elevators hall, being reached after the building’s access control. The door is internally contained by a MDF volume that marks the way out. On the opposite side, an existent concrete column is absorbed by a similar volume, made with the same materials. It accommodates internal shelves and part of the sound and image system. These two volumes enhance the axial symmetry intended for the Multi-Use Room, which can be seen in other elements. Leading to the building’s private parking lot, there is a secondary access on the serving area. There are many possible internal layouts for the Multi-Use Room. The chairs can form a U or a circle or a square. They can be arranged with auxiliary tables, which enables other possibilities. However, the best occupation is achieved with rows of chairs, being 50 users the maximum capacity (5 rows of 10). This is the most common layout, since it allows all users to look at the generous projection screen, which is part of an advanced sound and image system. There is a sliding door that separates the served from the serving area, which allows the integration of spaces if desired. The ceiling in this area is lowered, made of drywall, 270cm high. On the other hand, there’s no lowered ceiling in the served area. The reinforced concrete slab, 400cm high, is left apparent. And so are the electrical/data installations, air conditioning and fire prevention systems. Aiming to provide harmony to the internal volume – 400cm high, three internal façades containing diverse openings –, a 270m high cornice line is created. Below this line, walls are covered with a striped MDF surface that absorbs all existent openings and provides human scale to the internal volume. Also 16 orthogonally disposed pending lights form a virtual ceiling. The floor is covered with carpet tiles, that offer satisfactory acoustic properties and make maintenance easier. The walls above the cornice line are painted gray to emulate the apparent concrete on the slab’s face. The result is a series of simple spaces, with regular internal façades and proportional volumes, composed to provide architectural comfort, beauty, and, of course, all functional requirements of a Multi-Use Room.
FICHA TÉCNICA
- Fotos: Eduardo Liotti
- Execução obra civil: RCS Obras
- Projeto de elétrica e dados: RCS Obras
- Projeto de PPCI: Supernova
- Projeto de climatização: Invictus
- Mobiliário sob medida: Movesa Móveis
- Mobiliário pronto: Tradesign
- Carpete em placas: Tradesign
- Luminárias: Comespe
- Execução obra civil: RCS Obras
- Projeto de elétrica e dados: RCS Obras
- Projeto de PPCI: Supernova
- Projeto de climatização: Invictus
- Mobiliário sob medida: Movesa Móveis
- Mobiliário pronto: Tradesign
- Carpete em placas: Tradesign
- Luminárias: Comespe
CREDITS
- Photos: Eduardo Liotti
- Civil construction: RCS Obras
- Electrican and data cabling: RCS Obras
- Fire prevention system: Supernova
- Air conditioning system: Invictus
- Custom made forniture: Movesa Móveis
- Carpet tile flooring: Tradesign
- General forniture: Tradesign
- Lighting: Comespe
- Civil construction: RCS Obras
- Electrican and data cabling: RCS Obras
- Fire prevention system: Supernova
- Air conditioning system: Invictus
- Custom made forniture: Movesa Móveis
- Carpet tile flooring: Tradesign
- General forniture: Tradesign
- Lighting: Comespe